正在阅读:直播间|l鲁班装饰-2020家装流行味之素沈飞峰
分享文章

微信扫一扫

参与评论
0
当前位置:首页 / 资讯 / 装饰情报 / 正文
信息未审核或下架中,当前页面为预览效果,仅管理员可见

直播间|l鲁班装饰-2020家装流行味之素沈飞峰

投稿 莫兴波2020/03/05 20:29:55 发布 IP属地:未知 来源:微信公众号 作者:金德隆文化创意园 32725 阅读 0 评论 0 点赞


至简至美·作品赏析

为人性的复杂与多变,每个人每个时期对家的理解都不相同。但在所有的变化中,有一点是恒定的,那便是对爱与美的追求与期许。投射到家宅里,可以统称为对“幸福感”的诉求。“幸福”是一种只可意会的心理感受,对私宅设计来说,它并不依赖于高调的造型与花哨的装饰,设计师必须透过空间的表象去关注生活的本质,人性的关怀,才可抵达。


项目名称:景瑞上府

目规模:500㎡ 

目地址:绍兴市越城区


在这套500平排屋的设计里,感觉是收敛的。总体“收敛”的设计手法背后我们对空间调性的把控,逻辑的梳理,情感的提炼,真正还空间以本质,赋予生活幸福的意义。色彩,决定了空间的调性和灵魂。在所有色彩中,中性色是最为柔和的视觉感知色调,节制中饱含亲切感。在这样的空间里,哪怕只是静静蜷缩于沙发靠椅,任由日光温存,微风抚触,时光也即刻变得美妙而情深。


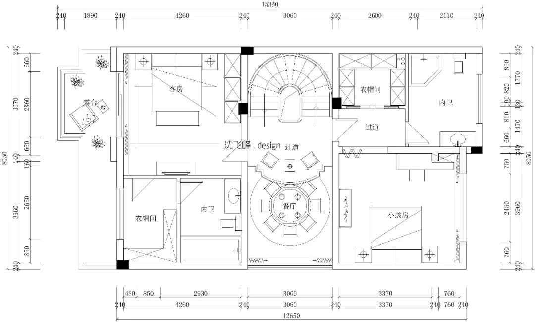
▼一楼平面图

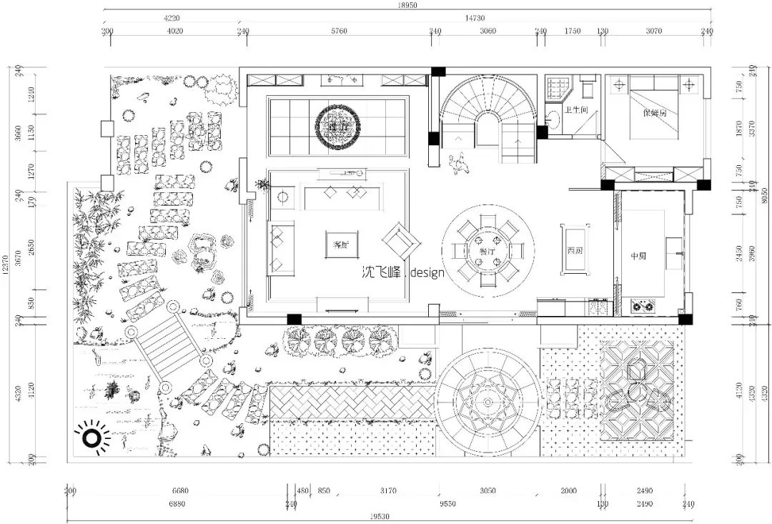
▼二楼平面图

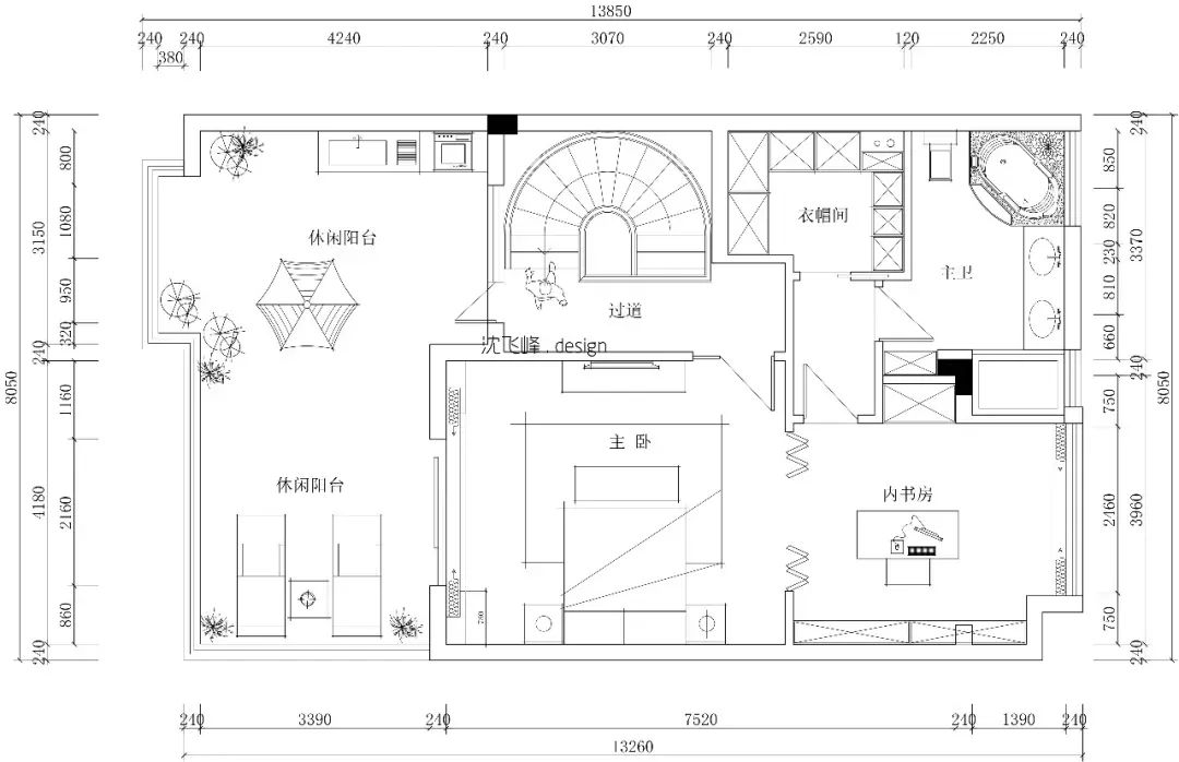
▼三楼平面图

这样的温情从客厅一直延伸至各功能空间,调性统一,浑然一体。在共性下,又为独立空间加入浅绿、浅黄或不同图案纹饰以区分不同的个性特征,或灵动或雅致,始终保持了高度的呼应度与一致性。阳光是客厅的最佳搭档。最美好的客厅离不开明媚阳光的衬托,家的舒适、温馨不仅需要家人互相扶持的暖,也需要窝在沙发里晒着阳光的那份温度。

阳光照在精美的家具上,让空间增加一层自然的薄纱,清新、自然的空气感扑面而来,在室内就能够呼吸到春的气息。

餐厅区域上方挑空直达屋顶,落地窗户,自然采光较好,光线通透,楼下公共空间互为呼应,成为空间中情感联系最好的落脚点。这种联系又因带着某种小小的遮蔽与阻碍,并不显直白和唐突,有一种东方式含蓄美学的韵味,不着痕迹地令人玩味和依恋。

我们在厨房做了中西厨分区,这样在凹造型的同时也不会受到油烟的困扰。在色彩的处理上采用低饱和度、低彩度的色彩搭配,营造一种优雅的居家氛围。

主卧沉静简美,一侧落地窗让空间更为开阔平稳。形式上只保留基础陈设,体现出自我、私密的态度。

房既是办公学习之所,也是作为临界点而存在。书房的阅读、工作氛围决定了这是一个简单而有感染力的空间,设计上延续了浅色的主调,加上精致的艺术品,整个空间气质高格而书香沛然。临窗而阅的自然之景亦为空间描摹一幅生动的画,赏心悦目。

客卧,推门而进看到的是床上点缀的颜色,它使整体不再沉闷,家具的线条柔和,成熟却不显得死板,反而有更多的可能,静与美的享受,走入你的梦想深处,让每个生活的小瞬间都充满甜美的回忆。静谧的夜里,那份最私属的空间,那份亲昵自己的慢时光是认知自我的成长。

女儿房延用纯净的色调,粉色、蓝色等色彩,加以点缀,斑点,图案的适当运用,给小孩制造一个甜而不腻的有爱空间,在时间流淌中,任其自然生长。

一楼向下,通往地下室,连接各区间动线的核心部分,以干脆利落的墙面线条与圆形吊顶,弧型走向楼梯造型,跨层对称的灯饰点缀,赋予垂直空间宽宏大气之感。

设计于此,在刻意中制造自然,在自然中寻觅张力,最终回归于人心灵的感知。漫步其中,宁静的氛围萦绕身旁,幽微的感受,艺术的气息,交织出空间的体验深度,让人自然沉浸其中。


侨都一品·作品赏析

目名称:侨都一品

目规模:310㎡ 

目地址:绍兴市


本案为310平米的现代私宅,业主有着较高的生活品质,以空间自然为灵感,以简单块面感呈现出温暖个性且收纳丰富的感觉。灰白色、淡蓝色来切割公共区域。灰白色让空间静谧,使人沉思,淡蓝色温暖质朴,让人沉浸在舒适自然,安详宁静的空间里。


▼客厅 Living Room

▼餐厅 Dining room

▼过道 Corridor

▼卧室 Bedroom

▼书房 Readding room


鲁班装饰>>>

地址:金德隆13幢201

电话:15857588958

座机:0575-89185899

网址:http://www.luban-deco.com/



已有0人点赞

微信图片_20211230114727.jpg

0条评论

 
承诺遵守文明发帖,国家相关法律法规 0/300