微信扫一扫
开
开工仪式 Commencement ceremony
项
项目介绍 Project introduction
项目地址:宝业四季园
设计面积:400㎡+
首席设计师:郁佳雯
施工团队:九鼎别墅装饰
设计风格:现代风格
平
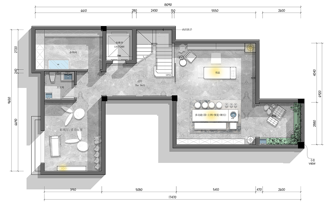
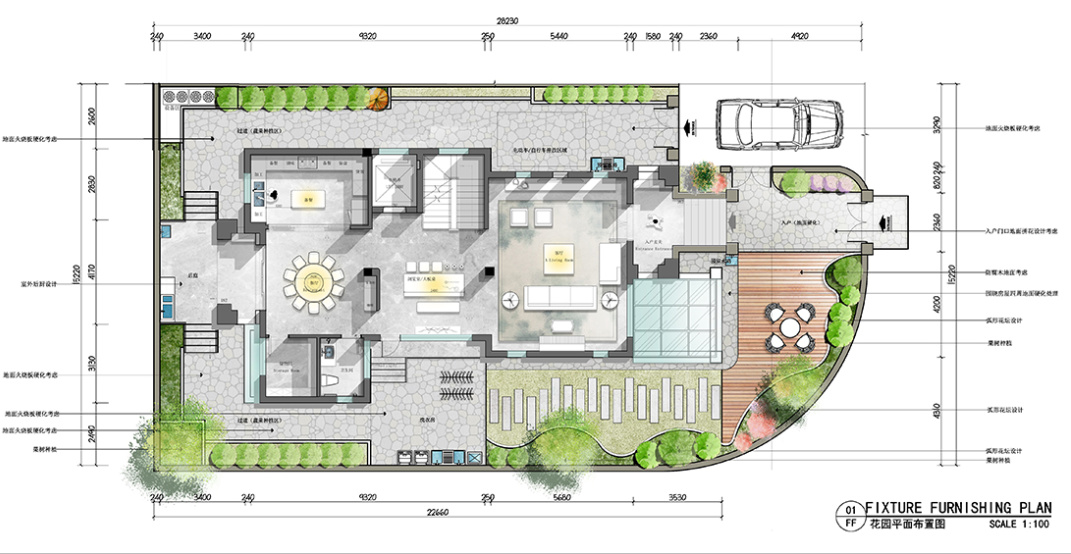
平面图 Graphic display

地下室平面布置图

一层平面布置图

二层平面布置图
作
作品赏析 Appreciative Remarks
设计师简介
郁佳雯
设计理念:一花一木,一器一物,做有烟火味的设计。春则觉醒而欢悦,冬则围炉夜话雪中寻诗,生活中实践美学,着力创造人性化,诗意化的空间。
擅长风格
美式、现代简约、轻奢、新中式、意式极简等
各种设计风格
荣誉奖项
国际建筑装饰室内设计协会高级室内设计师
2018FX国际室内设计大赛银奖 别墅类
2018金牌亚洲(绍兴)十佳设计师
2019中国亚太设计高级设计称号
2019绍兴家装协会最佳空间设计奖
2020绍兴家装协会最佳方案设计奖
作品案例
宝业四季园
南山郡
铭丰臻园
大家映江南
融创越州府
东湖庄园
枫丹白露园
鉴湖一号院
白鹭金滩
绍兴天下
迪荡湖壹号
公司简介
九鼎别墅 是做什么的?
专为别墅大宅提供全案设计装修一站式服务
20多年深耕 成就行业领军
九鼎别墅装饰是九鼎装饰旗下专注高端别墅设计与施工的全案配套家居服务平台。九鼎装饰成立于1998年,总部位于杭州,2003年入驻绍兴,累计服务绍兴1000多个幸福家庭的美好生活。
九鼎别墅装饰凭借创新的设计能力和夯实的5.0精工工艺,以及5.0版材料战略体系,率先突破传统别墅装修模式,创新推出符合绍兴人装修习惯的“九鼎别墅全案系统”,为别墅大宅业主提供透明、环保、省心、省时、省力、省钱的全案定制服务,致力成为绍兴高端家居服务领军品牌。

绍兴九鼎装饰
口碑相传 永续经营
地址:越西路金德隆文化创意园10幢
地址:华宇路103-104号(天一国际)
服务热线:0575-88613320
