当前位置: 首页 / 房产 / 装修案例 / 新房装修新古典室厅卫㎡
760

新房装修新古典室厅卫㎡

九鼎装饰股份有限公司绍兴分公司

绍兴市越西路800号金德隆商业中心10幢

查看电话
0575-88613320
查看微信
13656755258
  • 小区:未知
  • 户型:0室0厅0卫
  • 面积:0㎡未知
  • 类型:新房装修
  • 风格:新古典
  • 预算:0万未知
全景展示
案例介绍

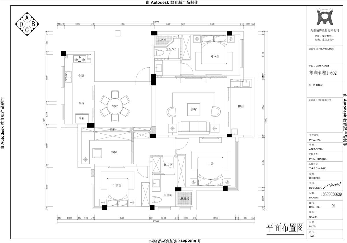
望湖名都1-602-Model.jpg

换一批其他案例
  • 中式0

  • 中式0

  • 中式0

  • 现代简约0