微信扫一扫
112期-恭祝金色丽都开工大吉!城建·城岩高端设计机构打造!
城建装饰成立于1993年,绍兴城岩建筑装饰工程有限公司是室内装修规模较大的优秀示范企业及家装一级资质企业,公司以“用我的诚心,换您的放心”作为家装服务宗旨,以做浙江家装行业的领跑者为目标。公司获得中国家装诚信企业、全国设计大奖获奖企业、浙江省家装行业优秀示范企业、浙江省放心家庭装潢优秀企业、家装一级企业、家装行业零投诉企业、连续三届囊括杭州室内装饰优秀企业等一连串辉煌荣誉。 “人才是企业发展的第一生产力”—我们等待你的加入!0575---84788001.地址:万达广场18幢123-124湖中路和华齐路交叉口。
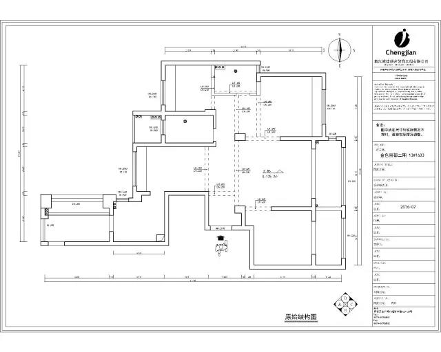
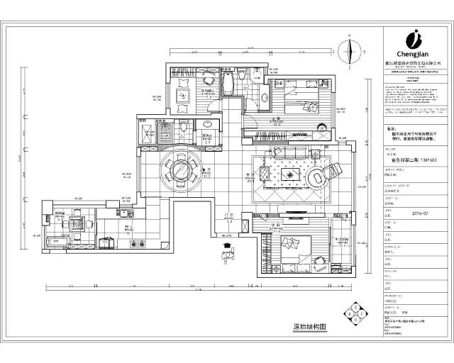
工地名称:金色丽都
设计师:翰英
装修户型(小户型/二室/三室/四室/公寓/别墅/复式/自建/排屋/公共空间):平层
装修风格(地中海/中式/美式/欧式/混搭/田园/现代/新古典/东南亚/日式/宜家/北欧/简欧/简约/韩式/法式):美式
装修方式(半包/全包):半包




动动手收索微信号加入城建装饰,更多资讯等着您,点击右上角推荐您的朋友,让更多的人了解城建、选择城建,有您的信任我们将会做的更好!
==============================
微信号:sxcjzs
联系电话:0575-84788001
咨询热线: 400
-615-0528
QQ在线:102506491
柯桥城建装饰因公司业务发展需要现需招聘一下岗位:
客 服——招聘人数3名
业务员——招聘人数5名
设计师——招聘人数10名
设计助理——招聘人数5名
软装设计师——招聘人数3名
施工员——招聘人数5名
工程质检——招聘人数3名
试用期三个月,一旦录用年薪不低于十万元,并购买社保。
待遇优厚,具体面谈,联系电话:13819582033—陈经理
微信公众号


