首发 . 安生设计 吴振宝丨VIFA威法(杭州)城市会客厅,艺术生活场
转载
孔晓君于 2025/07/22 14:54:37 发布
IP属地:未知
来源:环球设计
作者:环球设计
2294 阅读
0 评论
0 点赞
11
首发 . 安生设计 吴振宝丨VIFA威法(杭州)城市会客厅,艺术生活场
显示
“形”定基调
以当代之形,重构品牌切片,凝练艺术主张
“韵”写精神
借东方之意,解构商业表象,滋养诗意价值
杭州,一座在千年文脉与当代先锋间从容游走的城市,威法高定展厅落于此,恰取意于城市的双面型格,以"形简意远"的当代诗意东方逻辑,取材威法要素,构筑当代骨架,留白文脉厚度,空间弱化着墨,功能藏于形制,以虚实生内蕴,在素净界面上书写流动的诗意,以当代韵空灵,在克制中让艺术神韵自然生长……
VIFA威法杭州会客厅的落笔,是品牌“少即是多” 的包豪斯哲思与东方“形简意远” 诗意的共振,亦是安生设计为品牌在地性定制的独一性解题。高端定制的商业表象下,锚定的是精英生活方式与生活哲学的前瞻性引领。设计以此品牌原点破题,突破传统展陈模式桎梏,以“城市会客厅”为叙事蓝本,落笔于生活的流动图景,自然成脉,艺术为章,光影助兴,当代东方气韵流转其中,高定哲学生长出艺术滋养,极简基因里蕴发万千气象……
01
在市有“院”
入室见“园”
“樱”邀四季,自成隐“院”。
品牌的独一性构建,始于以城市会客厅的开放姿态,邀您入“院”的写意表达。入口景观植入以樱花与水景领衔的自然,成为品牌的序章引言。花开花落四季更迭,水景倒映天光人影,于喧嚣商圈中辟一方静谧,东方庭院的意向美学强力吸睛,建立“我”与空间、与品牌的初链接,品牌的生活哲学自此悄然代入,引流亦引心。
一整面玻璃窗的设定,消弭了边界,让空间外与内互生延展关系叙事。几何墙体与孔洞穿插的介入,瞬间消解了内与外的直白对视,让视线在藏与现之间游离,二次转折的空间叙事,构建出折意婉转的游园式空间漫游路径。见若不见的隐晦神秘,更牵引着人向内探索的好奇,仪式感与探索欲于此同时生成……
景墙作序,先抑后扬,动线循序渐进转译为《桃花源记》的叙事节奏。从恍若“初极狭,才通人”,到穿越体块后的“复行数十步,豁然开朗”。 曲径通幽,虚实交织,由威法高端定制所架构起的理想生活图景,以不同的场域篇章由此渐次铺开。觅境如游园,移步即观心。
形立骨,韵生魂。在威法高定生活体系的讲述中,设计破陈列之窠臼,引入美学艺术馆的空间写意。冲孔景墙兼得功能与美学平衡,于不同时间与天光共和,光影与几何不停变幻视觉序列,向内释放气韵流动之旖旎。当代艺术铺开脉络,固流美学渐染东方诗情。朱梯写折脉,木韵载东方。旋转楼梯如精琢雕刻的艺术品贯穿室内,婉转盘旋,昭示空间尺度,隐喻品牌气度,点睛展厅的“艺术”概念定位。木语东方,红燃风情。材质即宣言,于极简中书写着威法的高定基因。木踏板叠合的融入,既是设计彰显材质的创新之笔,又暗合东方喜木的文化密码。硬朗几何垂直切割出向上张力,灯光精准勾勒每一处材质把控的极致比例。墨色如注,凝固高定质感,红色燃情,释放品牌热烈。
02
象外之意
境心如一
设计站位于空间对精神维度的体验与滋养,落笔生花,写蕴化境。循着品牌理念到具象场域,再至无界想象的脉络,威法的极简哲学和精致生活态度主张,转译为“诗意东方”的一境韵万象。是闲看庭前樱花开落的审美唤醒,是自然四季流转的视觉馈赠,亦是千年风雅的东方诗意构建的自在哲学。
在一方集茶室、餐厅等多功能的静谧小境里,光影的持续写诗,留驻沉浸,打开想象。设计依托不同材质上的再编辑,制造了无数个开放的窗口与落点,让天光得以驻足、触及、创作,晕染材质,丰盈留白。以窗为笺,以自然为墨,待烛影画屏共宴人生。
超越物我,象外之意。
一整面似开未开的朦胧,一支横斜的雅事逍遥,成全室内外疏影遥望,自然呼吸同频,物我共生禅心。在此间,品牌的表达早已超越了符号,而在意境的流淌。克制勾勒,自由生长,日常在此成为最高级的艺术,恰是契合品牌“少即是多”的包豪斯主义。
设计立意于五感体验之高度,解构品牌的材质、工艺与美学等,落笔于场域,寄情于造境,聚焦品牌对生活方式的创作和觉醒。威法健康和高端的生活理念,融于板材的纹理,品质的昭示,自然的链接,于行走动线上造多方沉浸式的小境,空间切片流动为可触、可感、可品、亦可无尽想象的完整生活体系。基于空间赋能商业叙事的主线,设计以艺术造境与品牌暗线两大维度,不断深化人与品牌之境的关系递进,双向构建威法高定独一性的立体识别。品牌的标识如影随形,以含蓄美学融于生活体系的不同场域,人行其中,空间视觉处处框景,人与自然、空间及品牌的多面关系渐生,移步易境,视觉与心流并行进化,多面烙印。03
水光交映
境默流韵
沉浸与开放尺度的精准拿捏,冲孔景墙成为最大的功臣。当展厅身处竞品林立的喧嚣商圈中,景墙一语双关,一面制造神秘,以引力占领视觉的关注度;一面隔绝外部的噪音干扰,让游园的体验更加沉浸式“入戏”。孔洞是触发双面商业逻辑的开关,甘做光的通道,亦是人与人,人与空间关系交互的通道,室内的叙事亦有了对外延展的张力,场景互融,关系渐生……




水作流意,光引幻情。
建筑的静默容器之上,设计将室内引入水韵汀步,构建固流共生的空间美学。光影与气流,水韵与流韵,空间的静态渐起涟漪,于视觉上写就水光潋滟的幻境。微妙的空灵,在未来时间与空间的维度上,埋下了每一刻皆是定格的造境变量,人入境中,生出“当刻即是唯一”的心灵治愈。
商业策略隐于设计逻辑,将时间、空间与人的行走融合凝练为诗意的切片。光流、水流、人潮交织,排列组合,静默的建筑生长出动态之韵。动与静,自由与秩序的多面张力,赋予此间超越传统阵列的生命律动,至简中蕴生无限。“可望、可行、可游、可居”的商业体验暗线,也藉由对意境的探秘自然而然达成。设计将场域的终极描摹,指向精神的主体性,品牌的人文滋养。一切材质,元素和手法,皆成为留驻观者静心品味,宣导空间精神的介质。空间动线意在制造内观沉浸,借法江南园林“移步换景”的游园智慧,将直白的仓促消解,制造迂回通幽之意,藏露相生间,一呼一吸延长沉浸体验,一曲一折渐生精神投入。
04
艺术叙事
商业共生
立足于在地性的古韵与先锋双面型格,安生设计将诗意东方的内核,融于当代形体的构建,营造出专属于杭州VIFA 威法高端定制展厅的独一坐标。 设计以威法高品质精英美学的原发气质为灵感,跳脱出传统展示的桎梏,于都市中建一座纯粹的艺术生活场,成全 “城市会客厅”重构空间叙事,触发设计叙事与商业赋能的高度统一。
挑空的宏大格局,材质的边界突破,于宏观处昭示实力,成全了客厅的极致秩序与奢阔尺度。体块的穿插、咬合、跃动,则趋向于精准的细雕,为室内的丰富层次和艺术性构建找到了多个着力点。设计落笔不断以艺术风格写共鸣,以系统场景造范式,触发每一个身临展厅的“我”,对高阶生活的代入与想象,建立并逐步深化“我”与这一空间和品牌的链接。象外之意的张力,亦是品牌少即是多理念的转语。于此空间内,设计多个节点邀入光影,将静默的叙事转化为与自然共舞的动态诗学。空间随时间游移,触发不同光景下的灵动生命力,完成不同动线上目光与氛围的互动。天光云影共徘徊,虚室生白相映辉,处一境可照见自然万象,天地大美。至此,完成以空灵之境承载象外之意的品牌哲学表达。品牌无声,却处处隐语,形式服从功能的品牌设计理念呼之欲出。大规格墙板等体块的极简美学,将材质与工艺的精度,稳定与性能的昭示,皆转译为艺术生活场景的构建。产品构建了场域,亦消融于场域,有机的生态体系完整呈现,是设计对“vifa 威法在设计系统、空间哲学和材料应用上持续创新,确保一切美好构想稳定落地,最终保障客户体验”承诺的现实速写。楼梯叙事是空间的艺术修辞,亦是品牌与人建立情感链接的差异化纽带。蜿蜒折曲的动线,一面抒发艺术性,打破空间单一维度,一面化身为展厅的超级符号,建构起商业的记忆点。设计伏笔在空间里的商业叙事赋能,由视觉吸引深化为对威法展厅的独一识别,进而转化为深植人心的品牌资产。以艺术化生活体系为原点,构建起"家"的完整叙事,是设计赋能威法高定展厅的商业逻辑。空间至二三层渐入佳境,客餐厅、卧室、书房、衣帽间等完整体系,化身为墅居的流动叙事。以对生活方式的精准解构与重构,持续加深艺术生活场的意向。生活主张、美学精神、工艺精度,皆潜藏于模块化的场域中,片段造境,流动成章,暗语品牌型格。以一场完整的生活场景,完成了“自然生长的艺术气质” 的商业转译。将精密工艺隐于生活美学,让功能模块化为诗意栖居,最终实现从品牌到生活方式识别的完整升维,诉说着威法品牌“整体定制家居解决方案”的核心表达。 恰如vifa威法定制家居总经理王超对"乐高式"定制哲学的阐述,“通过设计与材料的革新,实现模块化、工业化生产,用装汽车或游艇的逻辑去装家,才能实现个性化与工业化的完美结合,获得品质稳定性和产出效率的提升。”05
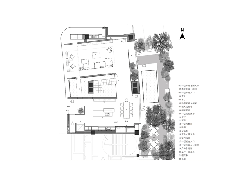
轴测图&平面图
△轴测图
△一层
△夹层
△二层
项目名称|VIFA威法(杭州)城市会客厅
空间性质|展厅
项目面积|1000㎡
项目地点|杭州市· 红星美凯龙(浙江全球家居1号店)
设计单位|安生建筑设计有限公司
设计团队|吴振宝、陈钇达、魏杰
软装设计|1637ART
完工时间|2025年01月
内容策划|清歌传媒
项目摄影|徐义稳
专注于室内设计18年,深受江南韵与骨的文化熏陶,自成一脉「诗意东方」的核心设计体系,自然美学与人文精神的立体坐标,是这一表达的两大脉络。在他的设计哲学中,“诗意东方”起于形,超于象,忠于意。东方为根脉,当代作维度,自然生长出无限诗意。设计在他笔下,化为造境的艺术,依托自然,发乎于心。更像是一场人与空间,与世界万物,与艺术精神等形而上的先锋探索。“审美性”为索引,“精神性”是指向。寻找生活方式多元答案的探索,是安生设计的思维哲学。安生设计生发于“Answer”,始终在发掘设计的核心价值,即解决不同问题的提出,依托室内设计、环境建筑设计等全案一体化综合能力,为每一次委托交付最佳答案。生活方式表达的场域转译,是安生设计的创意脉络。设计的视野不囿于空间类别与技法之间,人居,商业办公、实验性空间等皆在叙事范畴内。安生设计以“诗意东方”的探索为核心,当代的手法落笔艺术韵脚,一切场景美学的营造之外,早已指向空间对人的人文滋养和精神浸润。安生设计部分案例
▽





